Conditions de vente
Dont prix de vente : 91 500 €
Dont HN* TTC à la charge de l'acquéreur : 6 000 € (6.6%)
Description
Appartement à vendre - NANCY (54000)
NANCY,
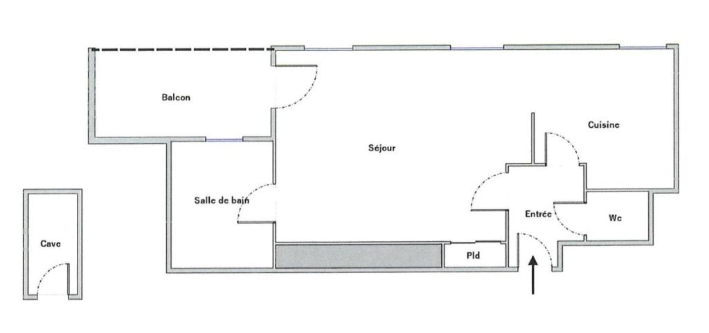
Secteur ARTEM / BLANDAN, à deux pas du site universitaire et proche de toutes les commodités. Dans une résidence bien tenue, F1 actuellement loué, en très bon état général avec balcon sans vis-à-vis. Lumineux et bien agencé. Cuisine équipée, sdb et wc indépendant . Place de parking privative sécurisée, cave. Chauffage individuel gaz.
Copropriété de 25 lots principaux
Charges trimestrielles : 497€ avec chauffage individuel gaz, eau chaude et froide sur relevé annuel, asc, frais de gestion syndic.
Visites : Sur rendez-vous.
Immobilier.notaires® : Evaluer, acheter & vendre avec les notaires partout en France. 12 000 notaires, experts et négociateurs vous accompagnent dans vos projets immobiliers en toute confiance.
Ancien/Neuf | Ancien |
Surface habitable | 31 m² |
Nombre de pièces | 1 |
Situation locative | Loué |
Stationnement | Oui |
Terrasse | Non |
Cave | Oui |
Référence | 54009-336 |
Date de mise à jour | 10/10/2025 |
Diagnostics de performance énergétique
Classe énergétique :
220 kWh/m2.an
43 kg CO2/m2.an

Emission de gaz à effet de serre :
43 kg Co2/m2.an

Diagnostic effectué le : 03/10/2025
Estimation des coûts annuels des dépenses énergétiques
Dépenses théoriques annuelles d’énergie : entre 530 € et 760 €
Année de référence : 2023
Copropriete
Plan de sauvegarde | non |
Administration provisoire du syndicat | non |
Coordonnées du syndic | FONCIA, 4 rue Piroux 54000 NANCY. |
*HN : Honoraire de négociation, hors frais de rédaction d'acte.
Pour les ventes, les prix sont affichés hors droits d'enregistrement et de publicité foncière.
**Honoraires de négociation TTC.
Pour les ventes, les prix sont affichés hors frais de rédaction d'acte, hors droits d'enregistrement et de publicité foncière. Pour les locations, les honoraires comprennent les frais de visite, de constitution de dossier et de rédaction de bail (Article 5 de la loi n°89-462 du 6 juillet 1989 modifié par la loi n°2017-86 du 27 janvier 2017 - art. 124)
Contacter l'office
Votre contact
NEGOCIATION IMMOBILIERE
ARNAUD LAMINETTE
Téléphone : 0383378416
Contacter par email